Πρόσκληση για τη συμμετοχή επαγγελματιών εστίασης στην εμποροπανήγυρη «Νιαήμερος» 2023

Στο πλαίσιο της εμποροπανήγυρης «Νιάημερος», η οποία θα πραγματοποιηθεί από Σάββατο 30 Σεπτεμβρίου έως και Τρίτη 3 Οκτωβρίου 2023, σύμφωνα με την υπ’ αριθμ 100/2023 ΑΔΣ Κοζάνης, έχουν χωροθετηθεί επτά θέσεις, οι οποίες προορίζονται για την εγκατάσταση και λειτουργία επιχειρήσεων παρασκευής και προσφοράς τροφίμων και ποτών.
Με την απόφαση 147/2022 έχει εγκριθεί και ο κανονισμός λειτουργίας των βραχυχρόνιων αγορών, στον οποίο εμπεριέχονται ο χώρος διενέργειας της, η χρονική διάρκεια της, τα πωλούμενα είδη, ο τρόπος επιλογής και τοποθέτησης των πωλητών, τα καταβαλλόμενα τέλη και ο τρόπος είσπραξης αυτών, καθώς και κάθε άλλο θέμα σχετικό με την ομαλή και απρόσκοπτη λειτουργία της.
Καλούνται οι ενδιαφερόμενοι που επιθυμούν τη δραστηριοποίηση τους στην εμποροπανήγυρη, να υποβάλλουν αίτηση έως τις 15-Σεπτεμβρίου, σύμφωνα με τα παρακάτω:
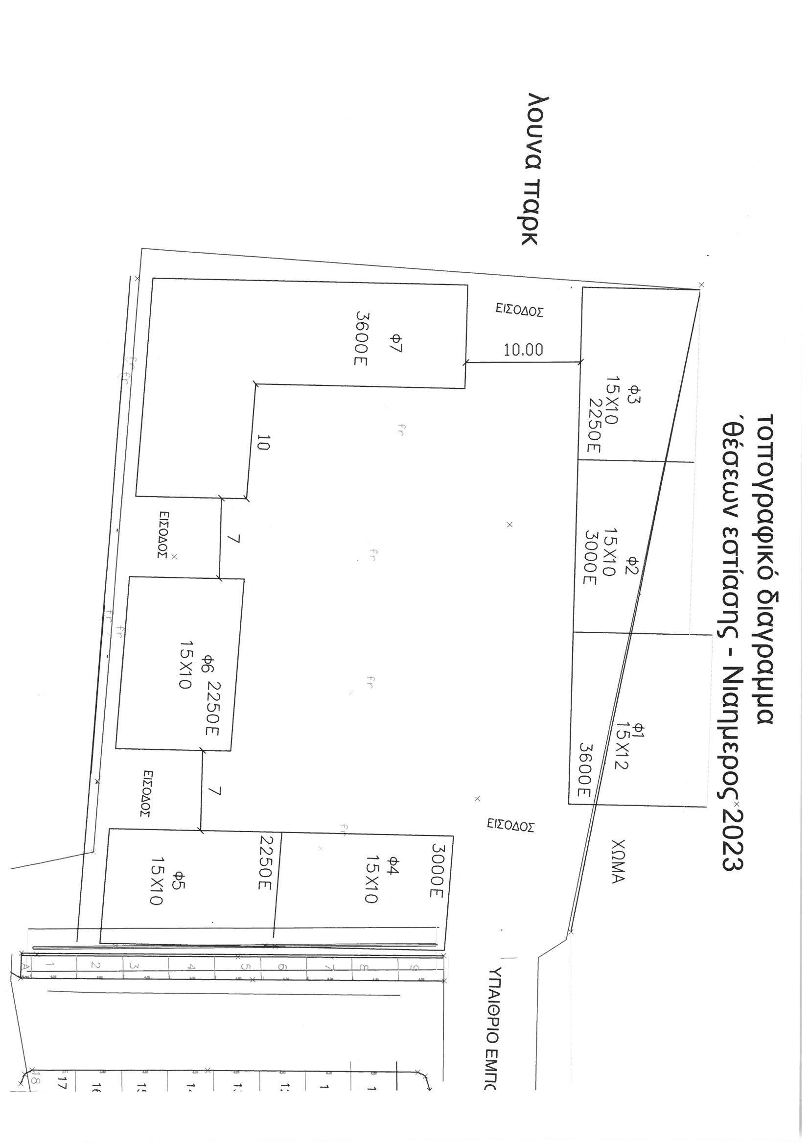
Οι θέσεις οι οποίες χωροθετήθηκαν και προορίζονται για εστίαση απεικονίζονται στο συνημμένο τοπογραφικό διάγραμμα. Έχουν χωροθετηθεί συνολικά επτά θέσεις. Οι ενδιαφερόμενοι μπορούν να εκδηλώνουν ενδιαφέρον για την τοποθέτηση τους σε μια μόνο θέση.
Τονίζουμε ότι οι επιχειρήσεις θα πρέπει να διαθέτουν βεβαίωση καταλληλότητας η οποία θα χορηγηθεί μετά από υγειονομικό έλεγχο του Τμήματος Περιβαλλοντικής Υγιεινής και Υγειονομικού Ελέγχου.
Οι ενδιαφερόμενοι πρέπει υποβάλλουν επί ποινή αποκλεισμού:
α.. Αίτηση, υπόδειγμα της οποίας βρίσκεται στο παράρτημα,
β. Υπεύθυνη δήλωση
γ. Βεβαίωση δραστηριοποίησης ετήσιας διάρκειας στις βραχυχρόνιες αγορές (η βεβαίωση αυτή εκδίδεται μέσω του πληροφοριακού συστήματος open market του Υπουργείου Ανάπτυξης. Αναλυτικές οδηγίες βρίσκονται στο παράρτημα)
έως 15 Σεπτεμβρίου 2023
Με την υποβολή της αίτησης ο ενδιαφερόμενος θα δηλώνει ότι:
- Έλαβε γνώση του σχετικού κανονισμού,
- Δεν έχει οφειλές στο Δήμο,
- Θα λάβει όλα τα απαιτούμενα μέτρα πυρασφάλειας – πυροπροστασίας, ότι διαθέτει και θα εγκαταστήσει πρόσφατα αναγομωμένο πυροσβεστήρα τύπου F δυο λίτρων κατ’ ελάχιστο (κατάλληλου για λίπη, έλαια) και άλλους δύο πυροσβεστήρες ξηράς κόνεως τουλάχιστον έξι κιλών.
- θα κάνει όλες τις απαιτούμενες ενέργειες προκειμένου να λάβει βεβαίωση καταλληλότητας Υγειονομικού
Τονίζουμε ότι θα πραγματοποιηθεί έλεγχος για την ύπαρξη τυχόν οφειλών στο Δήμο Κοζάνης. Σύμφωνα με το άρθρο 13 του κανονισμού η ύπαρξη βεβαιωμένων οφειλών αποτελεί λόγο απόρριψης της συμμετοχής.
Η τοποθέτηση των εκθετών θα γίνει με βάση τα προβλεπόμενα στον κανονισμό ( άρθρο 5) και κατόπιν οι επιλεγέντες θα καταβάλλουν τα τέλη που τους αναλογούν στο ταμείο του Δήμου, ή με κατάθεση σε λογαριασμό Τραπέζης που διατηρεί ο Δήμος Κοζάνης, προκειμένου για την έκδοση έγκρισης συμμετοχής στην εμποροπανήγυρη.
Παρατίθεται πίνακας των διατιθέμενων χώρων και τα τέλη που αναλογούν

Τα τέλη που θα καταβληθούν έχουν καθορισθεί με την 327/2022 ΑΔΣ
Οι αιτήσεις γίνονται αποκλειστικά ηλεκτρονικά στο e-mail: emporopanigiri@kozanh.gr
Η επιλογή των εκθετών και κατανομή των θέσεων, θα πραγματοποιηθεί στις 18 Σεπτεμβρίου, ώρα 10.00 στα γραφεία Τοπικής Οικονομικής Ανάπτυξης του Δήμου Κοζάνης.
Η καταβολή των τελών θα γίνει έως και τις 20 Σεπτεμβρίου. Διαφορετικά οι θέσεις θα θεωρηθούν ως αδιάθετες και θα διατεθούν σε επιλαχόντες ή με τυχόν συμπληρωματική μεταγενέστερη πρόσκληση.
Υπογραμμίζουμε ότι κατά την κατάθεση των τελών οι ενδιαφερόμενοι πρέπει να αναγράφουν Ονοματεπώνυμο, ΑΦΜ, εστίαση Νιάημερος.
Οι συμμετέχοντες θα καταλαμβάνουν τις θέσεις όπως ακριβώς απεικονίζονται στο συνημμένο τοπογραφικό διάγραμμα.